Advertisement

Autocad Bathroom Design / Sauna cabins in plan, single and double sinks in plan and elevation view, drawings of baths, showers, urinals, toilets.

Autocad Bathroom Design / Sauna cabins in plan, single and double sinks in plan and elevation view, drawings of baths, showers, urinals, toilets.. Designs of bathrooms, design, plans, autocad blocks. Bathtubs, toilets, showers, sinks, bathroom plans, public toilets and much more. Gates cad collections bundle dwg blocks. It helps maintain personal hygiene and should be a private, personal space designed for comfort and a peaceful retreat. It can be combined with rendering software such as archlinexp 'live' or lumion to achieve realistic walkthrough presentations.

Sanitary engineering / types room. This is explained by the fact that this planner allows you to create a bathroom both in 2d and 3d formats. Über 7 millionen englische bücher. Autocad drawings of toilets blocks, bathroom equipment, restrooms appliances, wc ladies and men room, water closet, lavatory, tubs, bath, bathtubs, showers, wash, jacuzzi, urinals. Bathroom faucets, kitchen faucets in plan and elevation view, bathtub.

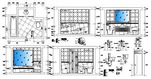
Toilet Plan Autocad Blocks 2d Dwg Drawings
Toilet Plan Autocad Blocks 2d Dwg Drawings from cad-block.com
Below are 10 of the best bathroom remodel software programs you can use to quickly create a design that's right for you. How a bathroom lays out will revolve around the toilet, the maximization of space, and the functionality of all elements. Regardless of the type, this is an area that. We have 33 images about bathroom design dw. Create bathroom plans with smartdraw's bathroom designer tool. Bar stools cad collection dwg. Bathroom furniture dwg block autocad designs cad. Autocad drawing of a hotel guest room bathroom size 2400x3450mm.(8'… toilet cad detail drawing (9'x6') with highlighter tile autocad drawing of a toilet size 2700x1650 mm.

Drawings are in dwg and dxf format.

Urban design cad collections dwg. Below are 10 of the best bathroom remodel software programs you can use to quickly create a design that's right for you. Here stone feature wall designed with different levels plays a wonderful role. Bathroom furniture dwg block autocad designs cad. This dwg file contains bathrooms in plan and in vertical projection, as well as the following 2d autocad models: Autocad lt forum welcome to autodesk's autocad lt forums. Autocad drawings of toilets blocks, bathroom equipment, restrooms appliances, wc ladies and men room, water closet, lavatory, tubs, bath, bathtubs, showers, wash, jacuzzi, urinals. Roomeon is one of the best free bathroom design software for windows. Bathtubs, toilets, showers, sinks, bathroom plans, public toilets and much more. We have 33 images about bathroom design dw. Smartdraw is the easiest way to design a bathroom. How a bathroom lays out will revolve around the toilet, the maximization of space, and the functionality of all elements. A bathroom layout design will be constrained by the size of the space and should ultimately place function over form in order of priorities.

This bathroom planner consists of modern electronic items that significantly ease the process of design. How a bathroom lays out will revolve around the toilet, the maximization of space, and the functionality of all elements. Bathroom design volume 3 cad collections dwg. Number of regular users, regulations and. Create bathroom plans with smartdraw's bathroom designer tool.

Bathroom 3d Cad Models Autocad Design Pro Autocad Blocks Drawings Download
Bathroom 3d Cad Models Autocad Design Pro Autocad Blocks Drawings Download from www.autocaddesignpro.com
Bathrooms serve different functions, often depending on the room or the design of a house. Bathroom faucets, kitchen faucets in plan and elevation view, bathtub. Urban design cad collections dwg. Über 7 millionen englische bücher. Cad software for kitchen and bathroom design. See more ideas about bathroom design, small bath design, washroom design. These bathroom remodel programs are inexpensive and now easier to use than ever before. Autocad lt forum > bathroom design;

A bathroom layout design will be constrained by the size of the space and should ultimately place function over form in order of priorities.

Architectural design cad collections volume 2. Below are 10 of the best bathroom remodel software programs you can use to quickly create a design that's right for you. You can design your own floor plan or use the available templates. Bathtubs, toilets, showers, sinks, bathroom plans, public toilets and much more. Gates cad collections bundle dwg blocks. Wood burning stoves cad collection dwg. Bath cad blocks shower cad blocks show tray cad blocks tap cad. We have 33 images about bathroom design dw. Designs of bathrooms, design, plans, autocad blocks. More than 60 cad blocks of bathroom fittings. You want your new dream bathroom to be both attractive and functional. We would like to present you one more dwg file with an autocad drawing of a bathroom that will complement our interiors section. Create bathroom plans with smartdraw's bathroom designer tool.

Drawings are in dwg and dxf format. Bidet, toilets, shower, shelves, mirror cabinet, mirrors. Autocad drawing blocks of bathrooms detail for free download Bathroom cad blocks free download, bathroom cad design bathroom design cad, bathroom dwg files, bathroom drawings block download ada bathroom cad block, ada bathroom design, ada bathroom layouts and cad dwg bathroom cad design free, bathroom cad drawings, bathroom collection bedroom furniture cad blocks, bedroom cad blocks interior design bath cad block, bathroom ada, bathroom blocks ada cad. Before you design it, you should consider a few essential points and clarify some basic conditions.

Free Cad Blocks Bathroom
Free Cad Blocks Bathroom from i0.wp.com
With bathroom remodel software you can choose your own floor plan, create your perfect layout, add materials and visualize your finished bathroom project. Bathroom cad blocks here you will find various high quality dwg files. Bathrooms for disabled people drawings, bathrooms for disabled people dwg, bathrooms for disabled people autocad, bathrooms for disabled people cad block, bathrooms for disabled people, architectural barriers are unfortunately still a reality that people with disabilities often have to deal with, here we face the issue of the disabled bathroom, that is, we provide cad drawings for those who. Bath cad blocks shower cad blocks show tray cad blocks tap cad. Share your knowledge, ask questions, and explore popular autocad lt topics. Autocad drawings of toilets blocks, bathroom equipment, restrooms appliances, wc ladies and men room, water closet, lavatory, tubs, bath, bathtubs, showers, wash, jacuzzi, urinals. Showing layout plan, rcp, all wall elevations, vanity design, sanitary fixtures etc. Design your dream bathroom with the online bathroom planner and then create a virtual view in just a few steps.

Bathroom faucets, kitchen faucets in plan and elevation view, bathtub.

Our job is to design and supply the free autocad blocks people need to engineer their big ideas. We have 33 images about bathroom design dw. Autocad lt forum welcome to autodesk's autocad lt forums. It can be combined with rendering software such as archlinexp 'live' or lumion to achieve realistic walkthrough presentations. Below are 10 of the best bathroom remodel software programs you can use to quickly create a design that's right for you. Before you design it, you should consider a few essential points and clarify some basic conditions. Bathrooms for disabled people drawings, bathrooms for disabled people dwg, bathrooms for disabled people autocad, bathrooms for disabled people cad block, bathrooms for disabled people, architectural barriers are unfortunately still a reality that people with disabilities often have to deal with, here we face the issue of the disabled bathroom, that is, we provide cad drawings for those who. Bathroom faucets, kitchen faucets in plan and elevation view, bathtub. This bathroom planner consists of modern electronic items that significantly ease the process of design. Bathroom design free autocad drawings. Here stone feature wall designed with different levels plays a wonderful role. In the 2d mode of design, length of each wall is displayed in meters. Share your knowledge, ask questions, and explore popular autocad lt topics.

Posting Komentar

0 Komentar